Zelfbouw gastenverblijf in Utrecht
Het tuinhuis van Inge en Monique
Binnen één week hebben Inge en Monique samen met ons het casco geplaatst.
Daarna konden ze in alle rust het tuinhuis afbouwen.


eps panelen 100% prefab
Besparen met zelfbouw
Bouwzelfeenhuis is een uniek EPS-bouwsysteem waarmee u uw eigen duurzame huis kunt bouwen. Wilt u zelf bouwen, met vrienden of het liever laten bouwen? Ontdek de mogelijkheden met het bouwvriendelijkste huis van Nederland
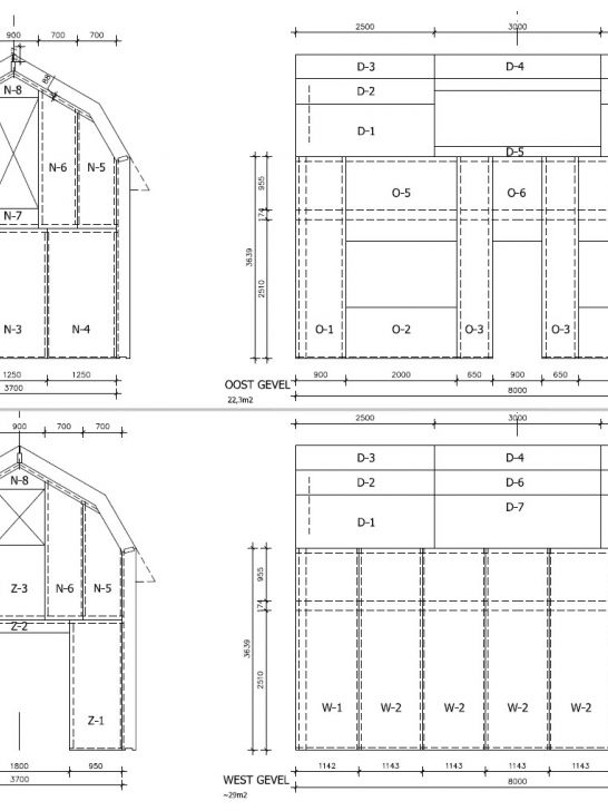
Fotoboek
Het zelfbouwproject




Inge en Monique over bouwzelfeenhuis:
De montage van het EPS casco systeem? Eén groot feest!
